Einfamilienhaus Erweiterung – Pool, Patio, SPA

UMBAU · BESTAND · PRIVAT

Mehr Raum. Mehr Licht.

Projekt EFH-Erweiterung Stufe 1:
Pool, Patio, SPA, Gästewohnung
Ort Perchtoldsdorf, Niederösterreich
Status Realisierung
Stufe 2 Aufstockung, Lifteinbau – Konzept
Fotografie Mischa Erben

„Mehr Raum, mehr Licht – und das nahezu unsichtbar."

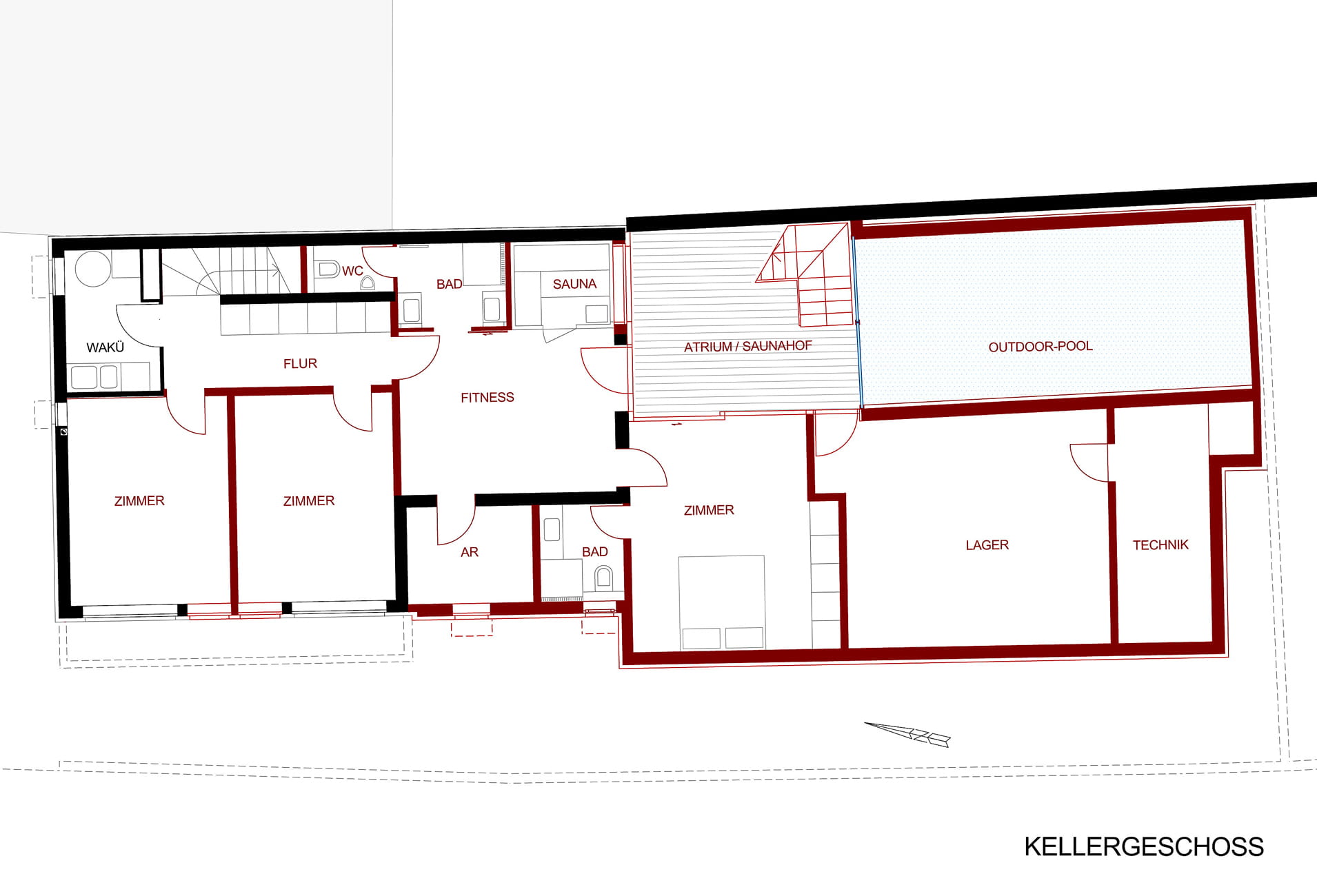
Ein begehbares und offen angelegtes, unter Straßenniveau abgesenktes Atrium definiert die natürlich belichtete räumliche Mitte im erweiterten Untergeschoss. Die Raumnutzung im Untergeschoss ist mit viel Licht, Luft und direkter Sonne für neu adaptierte Kinderzimmer, eine Gästezone sowie den Fitness-, Sauna-, Relax- und Sanitärbereich qualitätsvoll ermöglicht.

Bewusst gesetzte Blickachsen erzeugen Dimension und räumliche Tiefe mit unvertrauten Ein- und Ausblicken. Bei der Annäherung von außen ist nur ein Outdoor-Pool mit gläsernem Beckenrand zum Atrium wahrnehmbar, der die „Lücke" zwischen den bestehenden Häusern besetzt.

Die eigentliche Aufgabe dieser baulichen Erweiterung verschwindet überwiegend unter dem Grün der Rasenfläche. Die erzeugte Topographie fasst weiterhin einen attraktiven Freiraum mit Blick auf das tieferliegende Baumgrün – die dem Haus vorgelagerte Freifläche bleibt mit deutlich erweitertem Angebot für die Familie nutzbar.